top of page



1500 LB. Watercraft Lift - Electric Winch Saltwater Track
SKU PE1500S
$3,092.00
Upgrade to Stainless Steel Track
1
Product Details
Brand:
UBL
Weight:
215.00 lbs
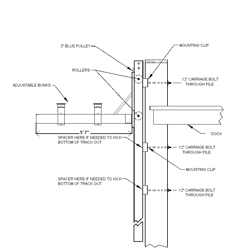
- 1-10' Track, 1- Set Of Forks With Bunker Board Brackets Pre- Mounted,
- Call for shipping fee. No shipping fee for pick up.
- 2- Aluminum Bunker Boards With Vinyl Padding,
- 1- Gear Plate Pre- Assembled With Cable Installed On Drum. Standard Hardware For Mounting
- 3 Stainless Steel Track Clips To Mount To Round Piling
- 3 - 12" X 5/8"Diameter Stainless Steel Carriage Bolts.
1500 LB. Watercraft Lift - Electric Winch Saltwater Track
You May Also Like
bottom of page